West Hub

West Hub Business Complex Al Bahary Rd, North of Damietta University Opposite Al-Sayeda Zainab Mosque Damietta, Egypt
  • Built in 2026
  • 400 Sq Ft

Description

West Hub Business Complex is one of the most prominent commercial and administrative projects in Damietta, developed by KUD Development. The project enjoys a strategic location on Al Bahary Main Road, directly north of Damietta University and opposite Al-Sayeda Zainab Mosque, making it a vibrant destination with excellent accessibility and high foot traffic.

The complex offers a variety of modern commercial and administrative units designed to meet the needs of businesses, offices, and retail activities. With its contemporary architectural design and prime location, West Hub provides an ideal environment for businesses looking to grow and thrive.

Property Attachments

Details

  • Lot area (sqft)
    450
  • Home area (sqft)
    400
  • Lot dimensions
    10x20
  • Year built
    2026
  • Status

Facts & Features

  • Air Conditioning
  • Basketball court
  • Dryer
  • Elevator
  • Garage Attached
  • Gym
  • Heating
  • Hot Bath
  • Media Room
  • Microwave
  • Outdoor Shower
  • Refrigerator
  • Swimming Pool
  • TV Cable
  • Washer
  • WiFi

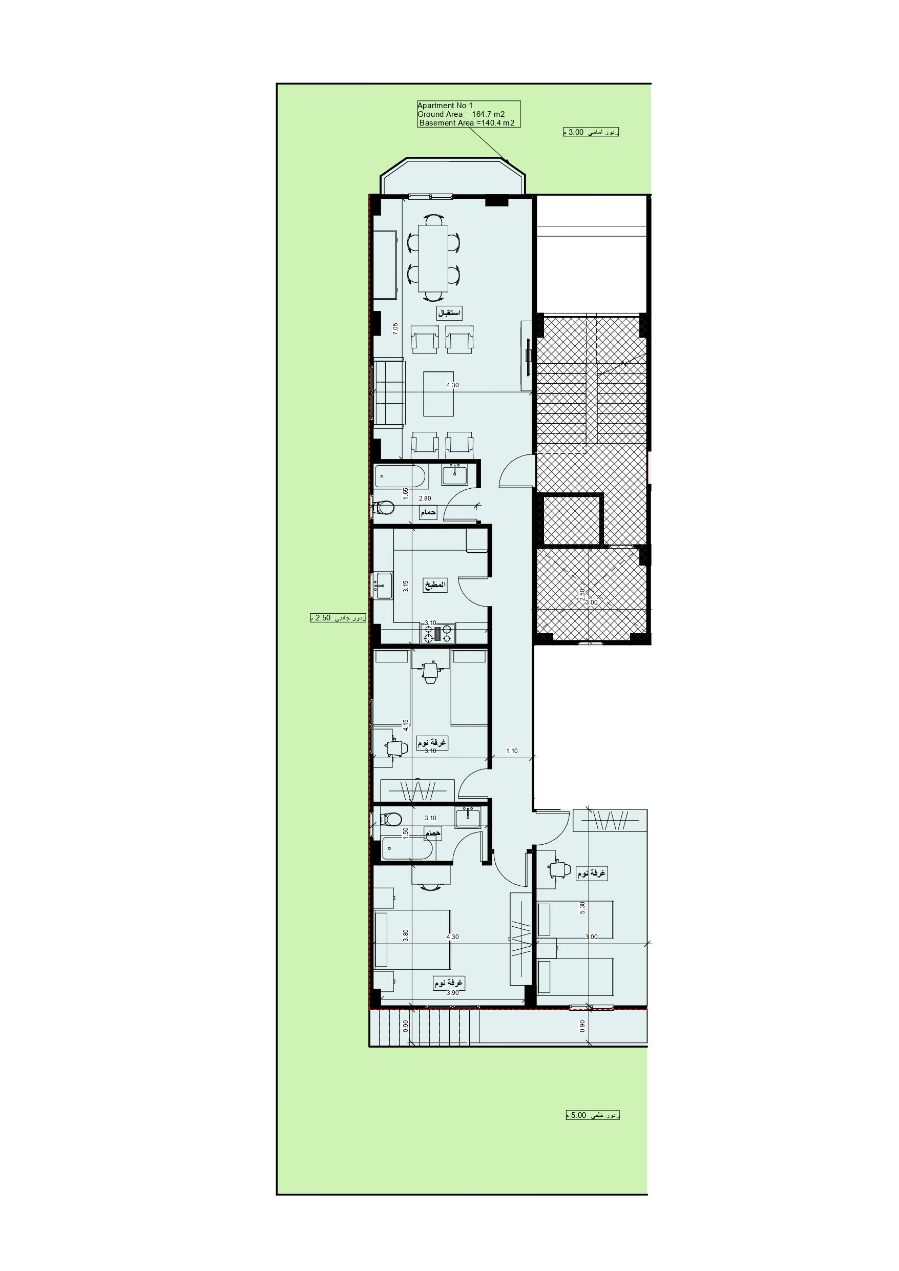
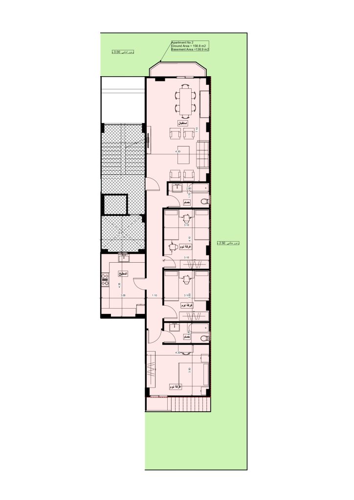
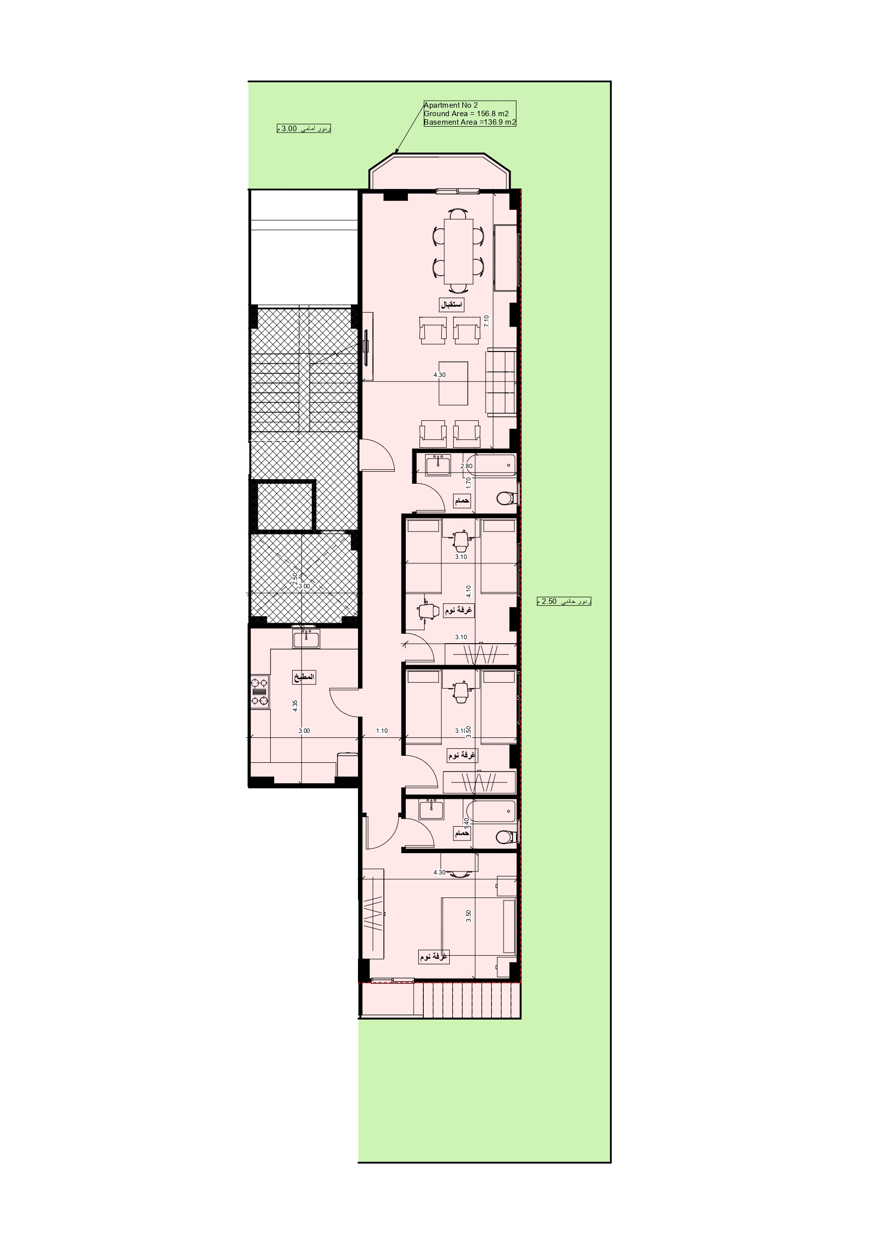
Floor Plans

Size:
280 SqFt
Size:
150 SqFt

Contact Author

admin@swevey.space

    Video

    360° Virtual Tour